











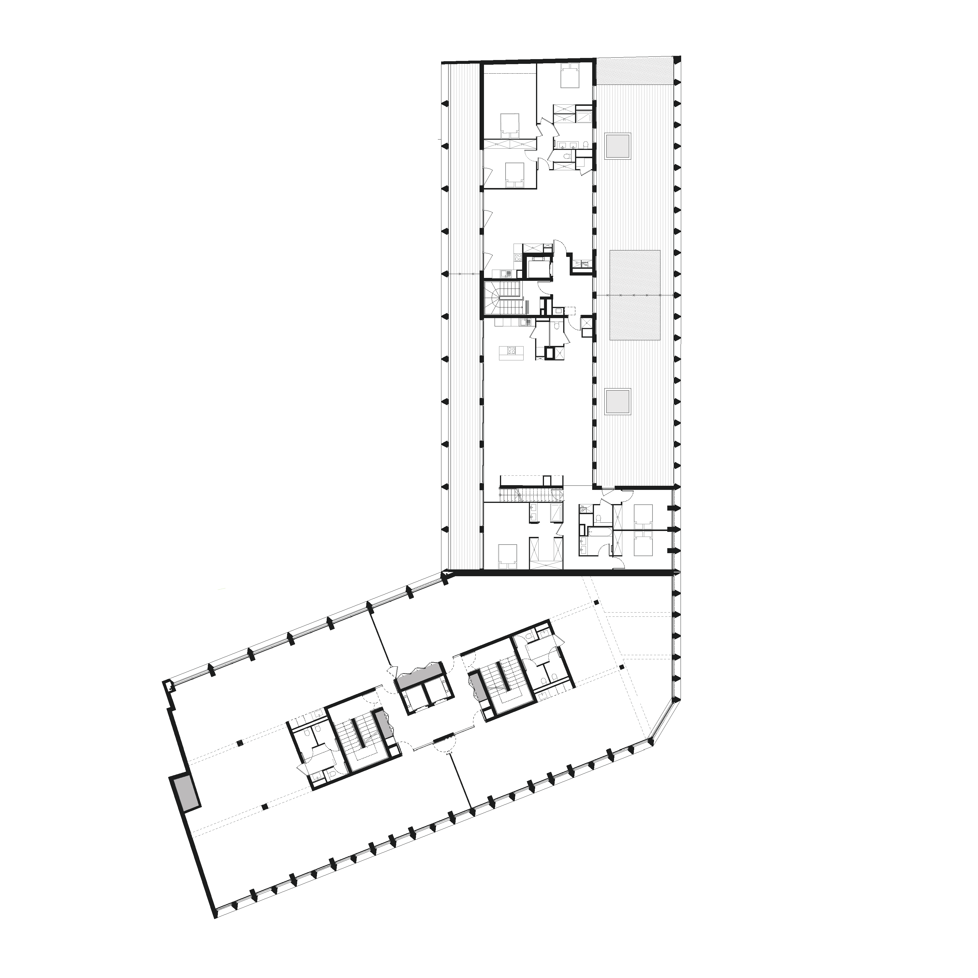
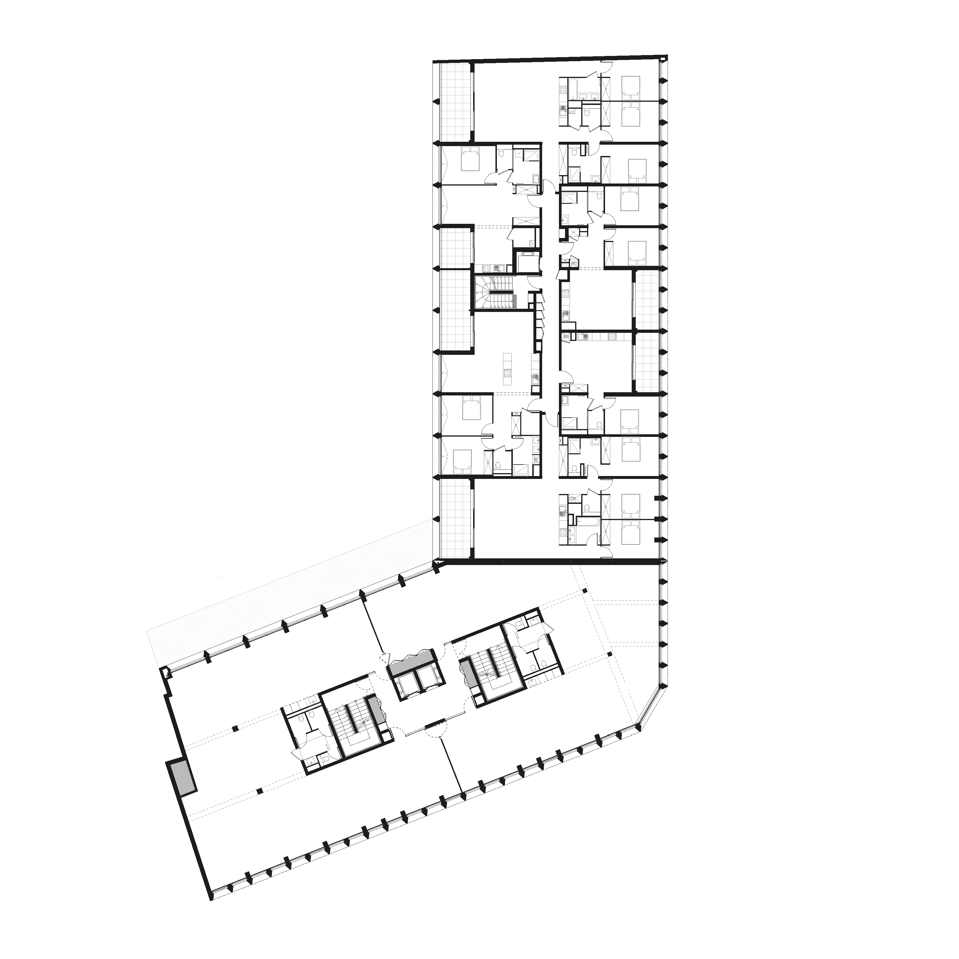
La position emblématique du projet confère un traitement particulier de l’enveloppe : une façade urbaine côté rue et une façade jardin en cœur d’îlot. Le projet instaure un dialogue avec le tissu urbain existant en se raccrochant aux bâtiments voisins et en reprenant leurs volumétries. Enfin l’objectif majeur du projet est de maintenir un linéaire bâti en reconstituant le contour d’un îlot classique et de tenir l’angle sur le carrefour assumant son rôle de bâtiment signal. Situé dans le secteur « ville de pierre » et en face-à-face avec le quartier Mériadeck, résolument contemporain, le projet est dès lors envisagé comme une transition harmonieuse entre ces deux espaces dissemblables. Une harmonisation des hauteurs de façade des immeubles contigus est ainsi observée à la fois à l’échelle de la ville mais également, dans l’îlot concerné.